165-169 Main Street CROYDON VIC
RETAIL/SHOWROOM
Substantial two level building located in the heart of Main Street!
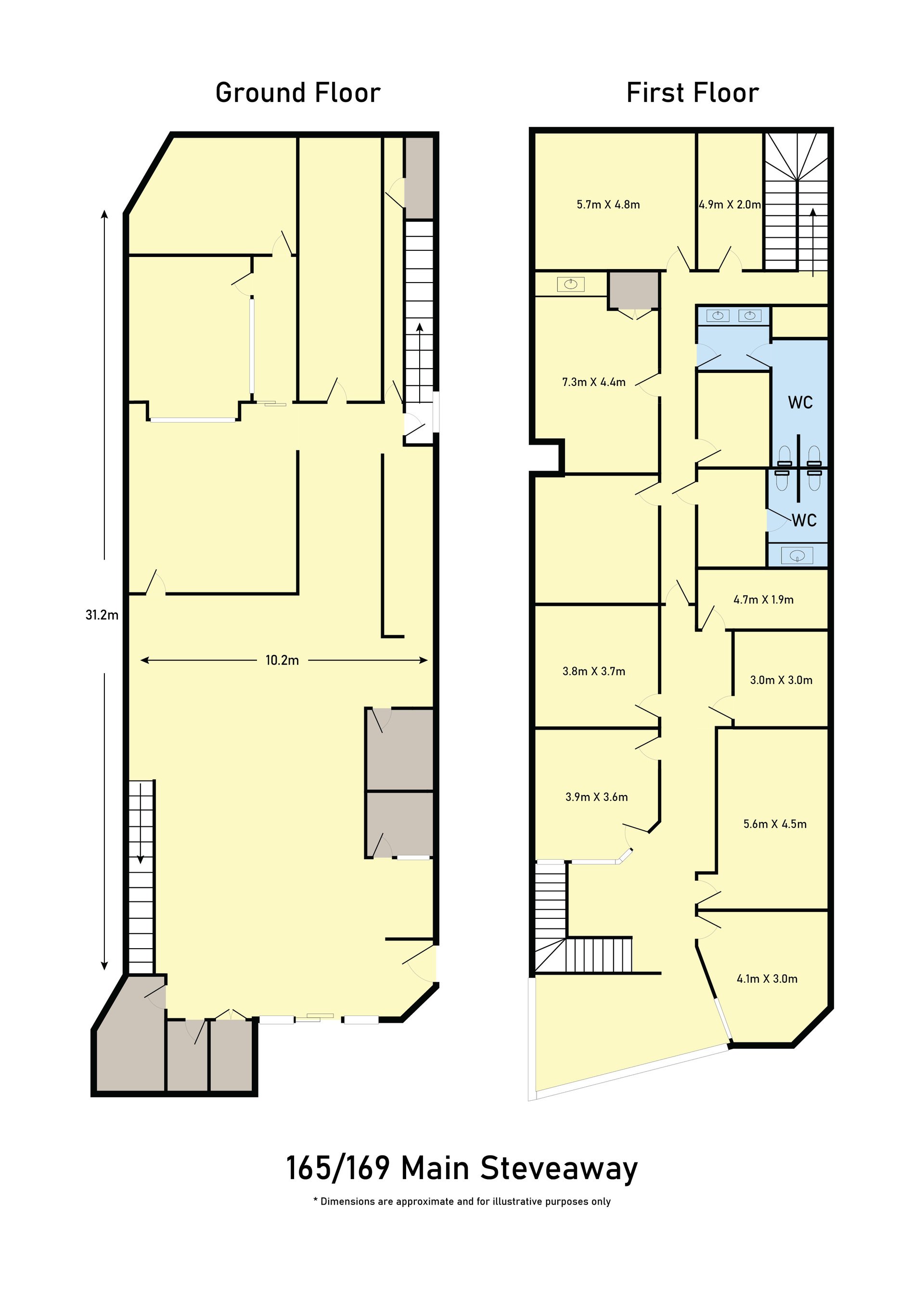
Building Area
Ground Floor: 350 sqm approx
1st Floor: 280 sqm approx
Total Building Area: 630 sqm approx
*Prime Location
*Steps to Croydon Station
*Loads of Foot Traffic
*Heating/Cooling
*Male & Female Toilets
*Kitchenette
*Part of a Bustling & Vibrant Retail Strip
Suitable for a variety of uses (s.t.c.a.).
Building Area
Ground Floor: 350 sqm approx
1st Floor: 280 sqm approx
Total Building Area: 630 sqm approx
*Prime Location
*Steps to Croydon Station
*Loads of Foot Traffic
*Heating/Cooling
*Male & Female Toilets
*Kitchenette
*Part of a Bustling & Vibrant Retail Strip
Suitable for a variety of uses (s.t.c.a.).